Architektur
Tischlerei Rüscher: Holzbau für Generationen

Die Stadtgemeinde Neumarkt am Wallersee besteht aus zwölf einzelnen Ortschaften. Für die unterschiedlichen Vereine der Umgebung wurde ein gemeinsames Zuhause unter einem Dach entwickelt. „Jedem der Vereine sollte ein Raum zur Verfügung gestellt werden, in dem das Vereinsleben in den unterschiedlichen Ausprägungen ermöglicht und gelebt werden kann. Zudem sollte ein mulifunktionaler Gemeinschaftsraum für alle Mitglieder errichtet werden“, erklärt Erhard Steiner von dunkelschwarz Architektur den Wettbewerbsansatz.
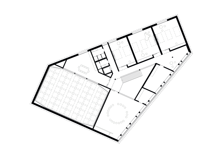
Der polygonale Grundriss des Gebäudes nimmt die Fluchten der heterogenen Umgebung auf und definiert gemeinsam mit einem zweiten Baukörper, dem Kindergarten, einen großzügigen Vorplatz. Dadurch gewinnt das Ensemble einerseits Präsenz im Straßenraum, andererseits wird die Ausbildung eines Grünraums ermöglicht. Sowohl Kindergartenkinder als auch Vereinsmitglieder nutzen rund um die Uhr den Platz und schaffen ein lebendiges Zentrum.
Nicht nur das Außen ist vom Miteinander geprägt, auch im Inneren werden Kommunikation und Begegnung gefördert. „Ein Gebäude, in dem alle Vereine eines Ortes untergebracht werden sollen, bietet den Mehrwert, dass neben ausreichend Platz für jeden Verein auch das Miteinander neu definiert und gelebt werden kann.“ Alle Räumlichkeiten wurden rund um ein Atrium angeordnet, sodass jeder Verein an der Gemeinschaftsfläche partizipiert.




Die Herausforderung bestand dabei darin, die unterschiedlichen Bedürfnisse der Nutzer:innen buchstäblich unter ein Dach zu bekommen. In zahlreichen Besprechungen wurden die verschiedenen Anforderungen abgestimmt und diskutiert. Unterschiedlich geneigte Dachflächen ergeben sich aus den unterschiedlichen Raumhöhen der einzelnen Funktionen und reagieren auf die umgebenden Gebäude.
Das zweigeschossige Atrium ist das verbindende Element von außen nach innen. „Über einen gedeckten Vorbereich gelangt man zur gemeinsamen Mitte, die als Treffpunkt, Verteiler und als offene Verbindung zum Obergeschoss funktioniert“, erzählt Erhard Steiner. „Im Erdgeschoss sind neben dem gemeinschaftlich genutzten Vereinsraum auch der Probesaal für die Trachtenmusikkapelle und weitere Vereinsräume untergebracht.“ Im Obergeschoss befinden sich die Proberäume der Musikschule, die akustisch von den Dachschrägen profitieren, und die Landjugend.



Holz als konstruktives und raumprägendes Material zu verwenden, lag nicht nur aufgrund seiner Ökologie nahe. Der Werkstoff schafft auch die Verbindung zu den traditionell gelagerten Vereinen und unterstützt die angenehme Raumwirkung und das Wohlbefinden im Inneren.
Gemeinsam mit der ausführenden Firma WIEHAG setzte man konstruktiv auf einen wirtschaftlichen Raster und Fichte massiv. Außenwände und Decken wurden in Brettsperrholz ausgeführt, Träger in Brettschichtholz. Aufgrund der hohen statischen Anforderungen überspannt den Eingangsbereich ein Fachwerkträger aus Baubuche.
Dem scheinbar komplexen Baukörper liegt ein einfaches geometrisches Prinzip zugrunde. Drei Grate bilden die Dachlandschaft und treffen sich an einem zentralen Hochpunkt. Die geneigten Dächer ermöglichen eine konventionelle Entwässerung. Besonders herausfordernd gestaltete sich der Schallschutz im sichtbaren, konstruktiven Holzbau. Die Decken wurden entsprechend konzipiert, um den akustischen Anforderungen zu entsprechen.
Im gesamten Gebäudeensemble wird der Gemeinschaft, zentrales Thema eines Vereins, besonders viel Platz eingeräumt. Die Anordnung der Räume fördert Begegnungen, die gemeinsame Mitte und der mit dem Kindergarten geteilte Vorplatz wird zum Treffpunkt des Vereinslebens im Ort. Ein intensiver Austausch mit den Nutzer:innen des Gebäudes „war sehr wichtig, damit es gut angenommen, genutzt und belebt wird. Allgemein sind wir sehr zufrieden mit dem Resultat“, fasst Erhard Steiner zusammen.


