Architektur
Kirchenkreiszentrum Lehnin von Krekeler Architekten

In Boulogne-Billancourt, einem südwestlichen Vorort von Paris, wurde ein Wettbewerb für ein Gebäude mit acht Sozialwohnungen und einem Geschäft ausgeschrieben. Voraussetzung war der Einsatz von Materialien mit geringen Auswirkungen auf die Umwelt. 2021 konnte diesen das Pariser Büro Déchelette Architecture für sich entscheiden. Das klare Design und die Verwendung eines Maximums an umweltfreundlichen, unverarbeiteten und biobasierten Materialien überzeugte die Jury.


Um der Vorgabe gerecht zu werden, hat das Architekt:innenduo ein Gebäude mit einer Fassade aus Lehm, einem Steinsockel straßenseitig und einer Holzfassade auf der Gartenseite entworfen. Die Stadt Boulogne-Billancourt, Eigentümerin des Grundstücks, überließ dem Wohnbauträger für Sozialwohnungen Seine Ouest Habitat et Patrimoine (SOHP), für einen symbolischen Euro die Parzelle in der Rue des Quatre-Cheminées mit dem Ziel, das Experimentieren mit neuen Baumethoden zu fördern. Der Einsatz von selbsttragendem Lehm auf vier Fassadenebenen ist eine Premiere für Mehrfamilienhäuser in Frankreich.
Déchelette Architecture erhielten den Generalauftrag für die gesamte Planung und Überwachung der Baustelle. Sie begleiteten dabei insbesondere die Unternehmen vor Ort, um sie für die besondere Arbeit mit Lehm zu sensibilisieren. „Stampflehm erfordert auf der Baustelle besondere Aufmerksamkeit, da er bis zum Anbringen der Abdeckungen ständig vor Witterungseinflüssen geschützt werden muss. Die Unternehmen, die es gewohnt waren, mit Beton zu arbeiten, mussten erst sensibilisiert werden“, berichtet das Geschwisterpaar Déchelette.


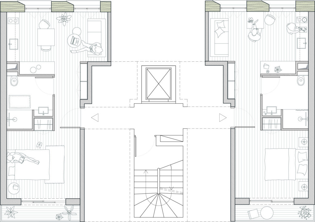
Das Erdgeschoss wird von zwei unabhängigen Einheiten gebildet, einem Geschäft und dem Zugang zu den Wohnungen. Von der Straße aus können Passant:innen einen Blick auf den Garten des Gebäudes erhaschen. Auch das Treppenhaus profitiert vom großzügigen natürlichen Lichteinfall gartenseitig.
Über dem Erdgeschoss erheben sich vier Wohngeschosse mit begrüntem Dach, die rund um eine zentrale Erschließungszone angeordnet sind. Jede Etage beherbergt zwei durchgesteckte Wohnungen mit gespiegeltem Grundriss, die den ganzen Tag über von natürlicher Belichtung und Belüftung profitieren.
Die Wohnräume sind bewusst zur Straße hin orientiert, um den Schlafbereichen die Ruhe des Gartens vorzubehalten. Die seitliche Abschrägung der Wände erlaubt den maximalen natürlichen Lichteinfall. Im Südosten werden die Schlafzimmer durch sonnige Balkone verlängert. Dank des kompakten Volumens kann so der Energiebedarf des Gebäudes optimiert werden.
Déchelette Architecture, die sich für Ressourcenschonung, Ökodesign und die Erhaltung der Landschaft einsetzen, suchten nach rohen, biobasierten Materialien mit möglichst geringen Umweltauswirkungen. Die Verwendung von Beton wurde auf ein Minimum reduziert, dafür kamen Stein, Lehm und Holz zum Einsatz.


Die selbsttragende Fassade wurde aus vorgefertigtem Stampflehm auf vier Ebenen konzipiert, die auf einem Sockel aus Quadersteinen ruhen – ein neuer Ansatz für ein Mehrfamilienhausprojekt in Frankreich. Die lange Trocknungszeit des Lehms stellte die Planenden vor die größte Herausforderung. Durch das Stapeln von vorgefertigten Blöcken gelang es, die monolithische Fassade in nur wenigen Tagen zusammenzubauen. „Terrio war das einzige Unternehmen, das auf unsere Ausschreibung reagierte. Wir hatten Glück, denn ihr Vorschlag zur Herstellung in Fertigbauweise passte perfekt zu dem, was wir uns wünschten, um das Problem der Bauzeit zu lösen“, berichten Déchelette Architecture.
Alle Strukturelemente des Gebäudes sowie Tür- und Fensterrahmen sind aus Holz gefertigt und mit Holzwolle gedämmt. Die rückwärtige, ländlichere Fassade aus Holz tritt mit dem bepflanzten Garten in einen Dialog.
Die Verwendung dieser biobasierten, unverarbeiteten Materialien ermöglichte es, den CO2-Fußabdruck des Projekts deutlich zu reduzieren. So konnten die ursprünglichen Low-Carbon-Ziele übertroffen und die höchste Qualifikationsstufe, HQE Level 3, erreicht werden. Damit wurde demonstriert, wie relevant der Einsatz von kreislauffähigen, natürlichen Materialien ist und wie diese sowohl Baustellenemissionen als auch langfristige Auswirkungen auf die Umwelt minimieren können.




