Kirchenkreiszentrum Lehnin von Krekeler Architekten
Architektur,
08.01.26
HOLZMAGAZIN Redaktion

Kirchenkreiszentrum Lehnin. Foto: Gregor Schmidt
JTNDZGl2JTIwY2xhc3MlM0QlMjJpbWFnZS13cmFwcGVyJTIwbGFuZHNjYXBlJTIwem9vbS1tb2JpbGUlMjIlM0UlM0NpbWclMjBsb2FkaW5nJTNEJTIybGF6eSUyMiUyMHNyY3NldCUzRCUyMmh0dHBzJTNBJTJGJTJGaG9sem1hZ2F6aW4uY29tJTJGd3AtY29udGVudCUyRnVwbG9hZHMlMkYyMDI2JTJGMDElMkZraXJjaGVua3JlaXN6ZW50cnVtLWxlaG5pbi1mb3Rvcy1uYWNoLWZlcnRpZ3N0ZWxsdW5nLWdyZWdvci1zY2htaWR0LTEuanBnJTIwMnglMkMlMjBodHRwcyUzQSUyRiUyRmhvbHptYWdhemluLmNvbSUyRndwLWNvbnRlbnQlMkZ1cGxvYWRzJTJGMjAyNiUyRjAxJTJGa2lyY2hlbmtyZWlzemVudHJ1bS1sZWhuaW4tZm90b3MtbmFjaC1mZXJ0aWdzdGVsbHVuZy1ncmVnb3Itc2NobWlkdC0xLTE5MjB4MTI3OS5qcGclMjAxOTIwdyUyQyUyMGh0dHBzJTNBJTJGJTJGaG9sem1hZ2F6aW4uY29tJTJGd3AtY29udGVudCUyRnVwbG9hZHMlMkYyMDI2JTJGMDElMkZraXJjaGVua3JlaXN6ZW50cnVtLWxlaG5pbi1mb3Rvcy1uYWNoLWZlcnRpZ3N0ZWxsdW5nLWdyZWdvci1zY2htaWR0LTEtOTYweDY0MC5qcGclMjA5NjB3JTJDJTIwaHR0cHMlM0ElMkYlMkZob2x6bWFnYXppbi5jb20lMkZ3cC1jb250ZW50JTJGdXBsb2FkcyUyRjIwMjYlMkYwMSUyRmtpcmNoZW5rcmVpc3plbnRydW0tbGVobmluLWZvdG9zLW5hY2gtZmVydGlnc3RlbGx1bmctZ3JlZ29yLXNjaG1pZHQtMS02NDB4NDI2LmpwZyUyMDY0MHclMkMlMjBodHRwcyUzQSUyRiUyRmhvbHptYWdhemluLmNvbSUyRndwLWNvbnRlbnQlMkZ1cGxvYWRzJTJGMjAyNiUyRjAxJTJGa2lyY2hlbmtyZWlzemVudHJ1bS1sZWhuaW4tZm90b3MtbmFjaC1mZXJ0aWdzdGVsbHVuZy1ncmVnb3Itc2NobWlkdC0xLTMyMHgyMTMuanBnJTIwMzIwdyUyMiUyMGRhdGEtc2l6ZXMlM0QlMjIxMDB2dyUyMiUyMHdpZHRoJTNEJTIyMTkyMCUyMiUyMGhlaWdodCUzRCUyMjEyNzklMjIlMjB0aXRsZSUzRCUyMktpcmNoZW5rcmVpc3plbnRydW0lMjBMZWhuaW5fRm90b3MlMjBuYWNoJTIwRmVydGlnc3RlbGx1bmdfR3JlZ29yJTIwU2NobWlkdCUyMCUyODElMjklMjIlMjBhbHQlM0QlMjIlMjIlMjBkYXRhLWNhcHRpb24lM0QlMjJLaXJjaGVua3JlaXN6ZW50cnVtJTIwTGVobmluLiUyMEZvdG8lM0ElMjBHcmVnb3IlMjBTY2htaWR0JTIyJTJGJTNFJTA5JTNDJTJGZGl2JTNF
Mit dem Umbau und der Erweiterung des Kirchenkreiszentrums in Kloster Lehnin ist ein gelungenes Beispiel für die Verbindung von denkmalgerechter Sanierung und zeitgemäßem Holzbau entstanden.
Das Projekt von Krekeler Architekten basiert auf einem Wettbewerbsgewinn und verfolgt das Ziel, das ortsbildprägende Gemeindehaus zu erhalten und durch einen Neubau in Holzrahmenbauweise zu ergänzen.

Foto: Gregor Schmidt
JTNDZGl2JTIwY2xhc3MlM0QlMjJpbWFnZS13cmFwcGVyJTIwbGFuZHNjYXBlJTIwem9vbS1tb2JpbGUlMjIlM0UlM0NpbWclMjBsb2FkaW5nJTNEJTIybGF6eSUyMiUyMHNyY3NldCUzRCUyMmh0dHBzJTNBJTJGJTJGaG9sem1hZ2F6aW4uY29tJTJGd3AtY29udGVudCUyRnVwbG9hZHMlMkYyMDI2JTJGMDElMkZraXJjaGVua3JlaXN6ZW50cnVtLWxlaG5pbi1mb3Rvcy1uYWNoLWZlcnRpZ3N0ZWxsdW5nLWdyZWdvci1zY2htaWR0LTEwLmpwZyUyMDJ4JTJDJTIwaHR0cHMlM0ElMkYlMkZob2x6bWFnYXppbi5jb20lMkZ3cC1jb250ZW50JTJGdXBsb2FkcyUyRjIwMjYlMkYwMSUyRmtpcmNoZW5rcmVpc3plbnRydW0tbGVobmluLWZvdG9zLW5hY2gtZmVydGlnc3RlbGx1bmctZ3JlZ29yLXNjaG1pZHQtMTAtMTkyMHgxMjgwLmpwZyUyMDE5MjB3JTJDJTIwaHR0cHMlM0ElMkYlMkZob2x6bWFnYXppbi5jb20lMkZ3cC1jb250ZW50JTJGdXBsb2FkcyUyRjIwMjYlMkYwMSUyRmtpcmNoZW5rcmVpc3plbnRydW0tbGVobmluLWZvdG9zLW5hY2gtZmVydGlnc3RlbGx1bmctZ3JlZ29yLXNjaG1pZHQtMTAtOTYweDY0MC5qcGclMjA5NjB3JTJDJTIwaHR0cHMlM0ElMkYlMkZob2x6bWFnYXppbi5jb20lMkZ3cC1jb250ZW50JTJGdXBsb2FkcyUyRjIwMjYlMkYwMSUyRmtpcmNoZW5rcmVpc3plbnRydW0tbGVobmluLWZvdG9zLW5hY2gtZmVydGlnc3RlbGx1bmctZ3JlZ29yLXNjaG1pZHQtMTAtNjQweDQyNy5qcGclMjA2NDB3JTJDJTIwaHR0cHMlM0ElMkYlMkZob2x6bWFnYXppbi5jb20lMkZ3cC1jb250ZW50JTJGdXBsb2FkcyUyRjIwMjYlMkYwMSUyRmtpcmNoZW5rcmVpc3plbnRydW0tbGVobmluLWZvdG9zLW5hY2gtZmVydGlnc3RlbGx1bmctZ3JlZ29yLXNjaG1pZHQtMTAtMzIweDIxMy5qcGclMjAzMjB3JTIyJTIwZGF0YS1zaXplcyUzRCUyMjEwMHZ3JTIyJTIwd2lkdGglM0QlMjIxOTIwJTIyJTIwaGVpZ2h0JTNEJTIyMTI4MCUyMiUyMHRpdGxlJTNEJTIyS2lyY2hlbmtyZWlzemVudHJ1bSUyMExlaG5pbl9Gb3RvcyUyMG5hY2glMjBGZXJ0aWdzdGVsbHVuZ19HcmVnb3IlMjBTY2htaWR0JTIwJTI4MTAlMjklMjIlMjBhbHQlM0QlMjIlMjIlMjBkYXRhLWNhcHRpb24lM0QlMjJGb3RvJTNBJTIwR3JlZ29yJTIwU2NobWlkdCUyMiUyRiUzRSUwOSUzQyUyRmRpdiUzRQ==
Der Neubau besteht aus zwei Teilen: einem Saalbau in reiner Holzrahmenbauweise und einem Verbindungsbau in Hybridbauweise, der den Übergang zum Massivbau des Bestands schafft. Die Fassadenbekleidung ist als hinterlüftete Konstruktion ausgeführt und mit vertikaler Lärchenholz-Bretterschalung in variierenden Breiten gestaltet. Diese Lösung sorgt nicht nur für eine lebendige Optik, sondern erfüllt auch bauphysikalische Anforderungen an Feuchteschutz und Dauerhaftigkeit.
Im Inneren prägt Holz die Atmosphäre: Der Saal ist durch eine offene Tragstruktur aus Brettschichtholzrahmen gegliedert, die nicht nur statische Funktionen übernimmt, sondern auch den sakral anmutenden Charakter des Raumes unterstreicht. Die Konstruktion erlaubt flexible Möblierung, sodass der Raum für Synoden, Konzerte oder Tagungen genutzt werden kann.

Foto: Gregor Schmidt
JTNDZGl2JTIwY2xhc3MlM0QlMjJpbWFnZS13cmFwcGVyJTIwbGFuZHNjYXBlJTIwem9vbS1tb2JpbGUlMjIlM0UlM0NpbWclMjBsb2FkaW5nJTNEJTIybGF6eSUyMiUyMHNyY3NldCUzRCUyMmh0dHBzJTNBJTJGJTJGaG9sem1hZ2F6aW4uY29tJTJGd3AtY29udGVudCUyRnVwbG9hZHMlMkYyMDI2JTJGMDElMkZraXJjaGVua3JlaXN6ZW50cnVtLWxlaG5pbi1mb3Rvcy1uYWNoLWZlcnRpZ3N0ZWxsdW5nLWdyZWdvci1zY2htaWR0LTIuanBnJTIwMnglMkMlMjBodHRwcyUzQSUyRiUyRmhvbHptYWdhemluLmNvbSUyRndwLWNvbnRlbnQlMkZ1cGxvYWRzJTJGMjAyNiUyRjAxJTJGa2lyY2hlbmtyZWlzemVudHJ1bS1sZWhuaW4tZm90b3MtbmFjaC1mZXJ0aWdzdGVsbHVuZy1ncmVnb3Itc2NobWlkdC0yLTE5MjB4MTI4MC5qcGclMjAxOTIwdyUyQyUyMGh0dHBzJTNBJTJGJTJGaG9sem1hZ2F6aW4uY29tJTJGd3AtY29udGVudCUyRnVwbG9hZHMlMkYyMDI2JTJGMDElMkZraXJjaGVua3JlaXN6ZW50cnVtLWxlaG5pbi1mb3Rvcy1uYWNoLWZlcnRpZ3N0ZWxsdW5nLWdyZWdvci1zY2htaWR0LTItOTYweDY0MC5qcGclMjA5NjB3JTJDJTIwaHR0cHMlM0ElMkYlMkZob2x6bWFnYXppbi5jb20lMkZ3cC1jb250ZW50JTJGdXBsb2FkcyUyRjIwMjYlMkYwMSUyRmtpcmNoZW5rcmVpc3plbnRydW0tbGVobmluLWZvdG9zLW5hY2gtZmVydGlnc3RlbGx1bmctZ3JlZ29yLXNjaG1pZHQtMi02NDB4NDI3LmpwZyUyMDY0MHclMkMlMjBodHRwcyUzQSUyRiUyRmhvbHptYWdhemluLmNvbSUyRndwLWNvbnRlbnQlMkZ1cGxvYWRzJTJGMjAyNiUyRjAxJTJGa2lyY2hlbmtyZWlzemVudHJ1bS1sZWhuaW4tZm90b3MtbmFjaC1mZXJ0aWdzdGVsbHVuZy1ncmVnb3Itc2NobWlkdC0yLTMyMHgyMTMuanBnJTIwMzIwdyUyMiUyMGRhdGEtc2l6ZXMlM0QlMjIxMDB2dyUyMiUyMHdpZHRoJTNEJTIyMTkyMCUyMiUyMGhlaWdodCUzRCUyMjEyODAlMjIlMjB0aXRsZSUzRCUyMktpcmNoZW5rcmVpc3plbnRydW0lMjBMZWhuaW5fRm90b3MlMjBuYWNoJTIwRmVydGlnc3RlbGx1bmdfR3JlZ29yJTIwU2NobWlkdCUyMCUyODIlMjklMjIlMjBhbHQlM0QlMjIlMjIlMjBkYXRhLWNhcHRpb24lM0QlMjJGb3RvJTNBJTIwR3JlZ29yJTIwU2NobWlkdCUyMiUyRiUzRSUwOSUzQyUyRmRpdiUzRQ==

Foto: Gregor Schmidt
JTNDZGl2JTIwY2xhc3MlM0QlMjJpbWFnZS13cmFwcGVyJTIwbGFuZHNjYXBlJTIwem9vbS1tb2JpbGUlMjIlM0UlM0NpbWclMjBsb2FkaW5nJTNEJTIybGF6eSUyMiUyMHNyY3NldCUzRCUyMmh0dHBzJTNBJTJGJTJGaG9sem1hZ2F6aW4uY29tJTJGd3AtY29udGVudCUyRnVwbG9hZHMlMkYyMDI2JTJGMDElMkZraXJjaGVua3JlaXN6ZW50cnVtLWxlaG5pbi1mb3Rvcy1uYWNoLWZlcnRpZ3N0ZWxsdW5nLWdyZWdvci1zY2htaWR0LTYuanBnJTIwMnglMkMlMjBodHRwcyUzQSUyRiUyRmhvbHptYWdhemluLmNvbSUyRndwLWNvbnRlbnQlMkZ1cGxvYWRzJTJGMjAyNiUyRjAxJTJGa2lyY2hlbmtyZWlzemVudHJ1bS1sZWhuaW4tZm90b3MtbmFjaC1mZXJ0aWdzdGVsbHVuZy1ncmVnb3Itc2NobWlkdC02LTE5MjB4MTI4MC5qcGclMjAxOTIwdyUyQyUyMGh0dHBzJTNBJTJGJTJGaG9sem1hZ2F6aW4uY29tJTJGd3AtY29udGVudCUyRnVwbG9hZHMlMkYyMDI2JTJGMDElMkZraXJjaGVua3JlaXN6ZW50cnVtLWxlaG5pbi1mb3Rvcy1uYWNoLWZlcnRpZ3N0ZWxsdW5nLWdyZWdvci1zY2htaWR0LTYtOTYweDY0MC5qcGclMjA5NjB3JTJDJTIwaHR0cHMlM0ElMkYlMkZob2x6bWFnYXppbi5jb20lMkZ3cC1jb250ZW50JTJGdXBsb2FkcyUyRjIwMjYlMkYwMSUyRmtpcmNoZW5rcmVpc3plbnRydW0tbGVobmluLWZvdG9zLW5hY2gtZmVydGlnc3RlbGx1bmctZ3JlZ29yLXNjaG1pZHQtNi02NDB4NDI3LmpwZyUyMDY0MHclMkMlMjBodHRwcyUzQSUyRiUyRmhvbHptYWdhemluLmNvbSUyRndwLWNvbnRlbnQlMkZ1cGxvYWRzJTJGMjAyNiUyRjAxJTJGa2lyY2hlbmtyZWlzemVudHJ1bS1sZWhuaW4tZm90b3MtbmFjaC1mZXJ0aWdzdGVsbHVuZy1ncmVnb3Itc2NobWlkdC02LTMyMHgyMTMuanBnJTIwMzIwdyUyMiUyMGRhdGEtc2l6ZXMlM0QlMjIxMDB2dyUyMiUyMHdpZHRoJTNEJTIyMTkyMCUyMiUyMGhlaWdodCUzRCUyMjEyODAlMjIlMjB0aXRsZSUzRCUyMktpcmNoZW5rcmVpc3plbnRydW0lMjBMZWhuaW5fRm90b3MlMjBuYWNoJTIwRmVydGlnc3RlbGx1bmdfR3JlZ29yJTIwU2NobWlkdCUyMCUyODYlMjklMjIlMjBhbHQlM0QlMjIlMjIlMjBkYXRhLWNhcHRpb24lM0QlMjJGb3RvJTNBJTIwR3JlZ29yJTIwU2NobWlkdCUyMiUyRiUzRSUwOSUzQyUyRmRpdiUzRQ==

Foto: Gregor Schmidt
JTNDZGl2JTIwY2xhc3MlM0QlMjJpbWFnZS13cmFwcGVyJTIwcG9ydHJhaXQlMjB6b29tLW1vYmlsZSUyMiUzRSUzQ2ltZyUyMGxvYWRpbmclM0QlMjJsYXp5JTIyJTIwc3Jjc2V0JTNEJTIyaHR0cHMlM0ElMkYlMkZob2x6bWFnYXppbi5jb20lMkZ3cC1jb250ZW50JTJGdXBsb2FkcyUyRjIwMjYlMkYwMSUyRmtpcmNoZW5rcmVpc3plbnRydW0tbGVobmluLWZvdG9zLW5hY2gtZmVydGlnc3RlbGx1bmctZ3JlZ29yLXNjaG1pZHQtOC5qcGclMjAyeCUyQyUyMGh0dHBzJTNBJTJGJTJGaG9sem1hZ2F6aW4uY29tJTJGd3AtY29udGVudCUyRnVwbG9hZHMlMkYyMDI2JTJGMDElMkZraXJjaGVua3JlaXN6ZW50cnVtLWxlaG5pbi1mb3Rvcy1uYWNoLWZlcnRpZ3N0ZWxsdW5nLWdyZWdvci1zY2htaWR0LTguanBnJTIwMTkyMHclMkMlMjBodHRwcyUzQSUyRiUyRmhvbHptYWdhemluLmNvbSUyRndwLWNvbnRlbnQlMkZ1cGxvYWRzJTJGMjAyNiUyRjAxJTJGa2lyY2hlbmtyZWlzemVudHJ1bS1sZWhuaW4tZm90b3MtbmFjaC1mZXJ0aWdzdGVsbHVuZy1ncmVnb3Itc2NobWlkdC04LTk2MHgxNDQwLmpwZyUyMDk2MHclMkMlMjBodHRwcyUzQSUyRiUyRmhvbHptYWdhemluLmNvbSUyRndwLWNvbnRlbnQlMkZ1cGxvYWRzJTJGMjAyNiUyRjAxJTJGa2lyY2hlbmtyZWlzemVudHJ1bS1sZWhuaW4tZm90b3MtbmFjaC1mZXJ0aWdzdGVsbHVuZy1ncmVnb3Itc2NobWlkdC04LTY0MHg5NjAuanBnJTIwNjQwdyUyQyUyMGh0dHBzJTNBJTJGJTJGaG9sem1hZ2F6aW4uY29tJTJGd3AtY29udGVudCUyRnVwbG9hZHMlMkYyMDI2JTJGMDElMkZraXJjaGVua3JlaXN6ZW50cnVtLWxlaG5pbi1mb3Rvcy1uYWNoLWZlcnRpZ3N0ZWxsdW5nLWdyZWdvci1zY2htaWR0LTgtMzIweDQ4MC5qcGclMjAzMjB3JTIyJTIwZGF0YS1zaXplcyUzRCUyMjEwMHZ3JTIyJTIwd2lkdGglM0QlMjIxNDAwJTIyJTIwaGVpZ2h0JTNEJTIyMjEwMCUyMiUyMHRpdGxlJTNEJTIyS2lyY2hlbmtyZWlzemVudHJ1bSUyMExlaG5pbl9Gb3RvcyUyMG5hY2glMjBGZXJ0aWdzdGVsbHVuZ19HcmVnb3IlMjBTY2htaWR0JTIwJTI4OCUyOSUyMiUyMGFsdCUzRCUyMiUyMiUyMGRhdGEtY2FwdGlvbiUzRCUyMkZvdG8lM0ElMjBHcmVnb3IlMjBTY2htaWR0JTIyJTJGJTNFJTA5JTNDJTJGZGl2JTNF

Foto: Gregor Schmidt
JTNDZGl2JTIwY2xhc3MlM0QlMjJpbWFnZS13cmFwcGVyJTIwcG9ydHJhaXQlMjB6b29tLW1vYmlsZSUyMiUzRSUzQ2ltZyUyMGxvYWRpbmclM0QlMjJsYXp5JTIyJTIwc3Jjc2V0JTNEJTIyaHR0cHMlM0ElMkYlMkZob2x6bWFnYXppbi5jb20lMkZ3cC1jb250ZW50JTJGdXBsb2FkcyUyRjIwMjYlMkYwMSUyRmtpcmNoZW5rcmVpc3plbnRydW0tbGVobmluLWZvdG9zLW5hY2gtZmVydGlnc3RlbGx1bmctZ3JlZ29yLXNjaG1pZHQtOS5qcGclMjAyeCUyQyUyMGh0dHBzJTNBJTJGJTJGaG9sem1hZ2F6aW4uY29tJTJGd3AtY29udGVudCUyRnVwbG9hZHMlMkYyMDI2JTJGMDElMkZraXJjaGVua3JlaXN6ZW50cnVtLWxlaG5pbi1mb3Rvcy1uYWNoLWZlcnRpZ3N0ZWxsdW5nLWdyZWdvci1zY2htaWR0LTkuanBnJTIwMTkyMHclMkMlMjBodHRwcyUzQSUyRiUyRmhvbHptYWdhemluLmNvbSUyRndwLWNvbnRlbnQlMkZ1cGxvYWRzJTJGMjAyNiUyRjAxJTJGa2lyY2hlbmtyZWlzemVudHJ1bS1sZWhuaW4tZm90b3MtbmFjaC1mZXJ0aWdzdGVsbHVuZy1ncmVnb3Itc2NobWlkdC05LTk2MHgxNDQwLmpwZyUyMDk2MHclMkMlMjBodHRwcyUzQSUyRiUyRmhvbHptYWdhemluLmNvbSUyRndwLWNvbnRlbnQlMkZ1cGxvYWRzJTJGMjAyNiUyRjAxJTJGa2lyY2hlbmtyZWlzemVudHJ1bS1sZWhuaW4tZm90b3MtbmFjaC1mZXJ0aWdzdGVsbHVuZy1ncmVnb3Itc2NobWlkdC05LTY0MHg5NjAuanBnJTIwNjQwdyUyQyUyMGh0dHBzJTNBJTJGJTJGaG9sem1hZ2F6aW4uY29tJTJGd3AtY29udGVudCUyRnVwbG9hZHMlMkYyMDI2JTJGMDElMkZraXJjaGVua3JlaXN6ZW50cnVtLWxlaG5pbi1mb3Rvcy1uYWNoLWZlcnRpZ3N0ZWxsdW5nLWdyZWdvci1zY2htaWR0LTktMzIweDQ4MC5qcGclMjAzMjB3JTIyJTIwZGF0YS1zaXplcyUzRCUyMjEwMHZ3JTIyJTIwd2lkdGglM0QlMjIxNDAwJTIyJTIwaGVpZ2h0JTNEJTIyMjEwMCUyMiUyMHRpdGxlJTNEJTIyS2lyY2hlbmtyZWlzemVudHJ1bSUyMExlaG5pbl9Gb3RvcyUyMG5hY2glMjBGZXJ0aWdzdGVsbHVuZ19HcmVnb3IlMjBTY2htaWR0JTIwJTI4OSUyOSUyMiUyMGFsdCUzRCUyMiUyMiUyMGRhdGEtY2FwdGlvbiUzRCUyMkZvdG8lM0ElMjBHcmVnb3IlMjBTY2htaWR0JTIyJTJGJTNFJTA5JTNDJTJGZGl2JTNF
Das Kirchenkreiszentrum ist auf einen klimagerechten Betrieb ausgelegt. Eine Wärmepumpe mit Erdsonden deckt die Heiz- und Kühlbedarfe, ergänzt durch eine Photovoltaikanlage zur Eigenstromerzeugung. Die Wahl des nachwachsenden Rohstoffs Holz reduziert den CO₂-Fußabdruck des Neubaus erheblich und trägt zur langfristigen Nachhaltigkeit bei.

Foto: Gregor Schmidt
JTNDZGl2JTIwY2xhc3MlM0QlMjJpbWFnZS13cmFwcGVyJTIwcG9ydHJhaXQlMjB6b29tLW1vYmlsZSUyMiUzRSUzQ2ltZyUyMGxvYWRpbmclM0QlMjJsYXp5JTIyJTIwc3Jjc2V0JTNEJTIyaHR0cHMlM0ElMkYlMkZob2x6bWFnYXppbi5jb20lMkZ3cC1jb250ZW50JTJGdXBsb2FkcyUyRjIwMjYlMkYwMSUyRmtpcmNoZW5rcmVpc3plbnRydW0tbGVobmluLWZvdG9zLW5hY2gtZmVydGlnc3RlbGx1bmctZ3JlZ29yLXNjaG1pZHQtMTIuanBnJTIwMnglMkMlMjBodHRwcyUzQSUyRiUyRmhvbHptYWdhemluLmNvbSUyRndwLWNvbnRlbnQlMkZ1cGxvYWRzJTJGMjAyNiUyRjAxJTJGa2lyY2hlbmtyZWlzemVudHJ1bS1sZWhuaW4tZm90b3MtbmFjaC1mZXJ0aWdzdGVsbHVuZy1ncmVnb3Itc2NobWlkdC0xMi5qcGclMjAxOTIwdyUyQyUyMGh0dHBzJTNBJTJGJTJGaG9sem1hZ2F6aW4uY29tJTJGd3AtY29udGVudCUyRnVwbG9hZHMlMkYyMDI2JTJGMDElMkZraXJjaGVua3JlaXN6ZW50cnVtLWxlaG5pbi1mb3Rvcy1uYWNoLWZlcnRpZ3N0ZWxsdW5nLWdyZWdvci1zY2htaWR0LTEyLTk2MHgxNDQwLmpwZyUyMDk2MHclMkMlMjBodHRwcyUzQSUyRiUyRmhvbHptYWdhemluLmNvbSUyRndwLWNvbnRlbnQlMkZ1cGxvYWRzJTJGMjAyNiUyRjAxJTJGa2lyY2hlbmtyZWlzemVudHJ1bS1sZWhuaW4tZm90b3MtbmFjaC1mZXJ0aWdzdGVsbHVuZy1ncmVnb3Itc2NobWlkdC0xMi02NDB4OTYwLmpwZyUyMDY0MHclMkMlMjBodHRwcyUzQSUyRiUyRmhvbHptYWdhemluLmNvbSUyRndwLWNvbnRlbnQlMkZ1cGxvYWRzJTJGMjAyNiUyRjAxJTJGa2lyY2hlbmtyZWlzemVudHJ1bS1sZWhuaW4tZm90b3MtbmFjaC1mZXJ0aWdzdGVsbHVuZy1ncmVnb3Itc2NobWlkdC0xMi0zMjB4NDgwLmpwZyUyMDMyMHclMjIlMjBkYXRhLXNpemVzJTNEJTIyMTAwdnclMjIlMjB3aWR0aCUzRCUyMjE0MDAlMjIlMjBoZWlnaHQlM0QlMjIyMTAwJTIyJTIwdGl0bGUlM0QlMjJLaXJjaGVua3JlaXN6ZW50cnVtJTIwTGVobmluX0ZvdG9zJTIwbmFjaCUyMEZlcnRpZ3N0ZWxsdW5nX0dyZWdvciUyMFNjaG1pZHQlMjAlMjgxMiUyOSUyMiUyMGFsdCUzRCUyMiUyMiUyMGRhdGEtY2FwdGlvbiUzRCUyMkZvdG8lM0ElMjBHcmVnb3IlMjBTY2htaWR0JTIyJTJGJTNFJTA5JTNDJTJGZGl2JTNF

Foto: Gregor Schmidt
JTNDZGl2JTIwY2xhc3MlM0QlMjJpbWFnZS13cmFwcGVyJTIwcG9ydHJhaXQlMjB6b29tLW1vYmlsZSUyMiUzRSUzQ2ltZyUyMGxvYWRpbmclM0QlMjJsYXp5JTIyJTIwc3Jjc2V0JTNEJTIyaHR0cHMlM0ElMkYlMkZob2x6bWFnYXppbi5jb20lMkZ3cC1jb250ZW50JTJGdXBsb2FkcyUyRjIwMjYlMkYwMSUyRmtpcmNoZW5rcmVpc3plbnRydW0tbGVobmluLWZvdG9zLW5hY2gtZmVydGlnc3RlbGx1bmctZ3JlZ29yLXNjaG1pZHQtMTMuanBnJTIwMnglMkMlMjBodHRwcyUzQSUyRiUyRmhvbHptYWdhemluLmNvbSUyRndwLWNvbnRlbnQlMkZ1cGxvYWRzJTJGMjAyNiUyRjAxJTJGa2lyY2hlbmtyZWlzemVudHJ1bS1sZWhuaW4tZm90b3MtbmFjaC1mZXJ0aWdzdGVsbHVuZy1ncmVnb3Itc2NobWlkdC0xMy5qcGclMjAxOTIwdyUyQyUyMGh0dHBzJTNBJTJGJTJGaG9sem1hZ2F6aW4uY29tJTJGd3AtY29udGVudCUyRnVwbG9hZHMlMkYyMDI2JTJGMDElMkZraXJjaGVua3JlaXN6ZW50cnVtLWxlaG5pbi1mb3Rvcy1uYWNoLWZlcnRpZ3N0ZWxsdW5nLWdyZWdvci1zY2htaWR0LTEzLTk2MHgxNDQwLmpwZyUyMDk2MHclMkMlMjBodHRwcyUzQSUyRiUyRmhvbHptYWdhemluLmNvbSUyRndwLWNvbnRlbnQlMkZ1cGxvYWRzJTJGMjAyNiUyRjAxJTJGa2lyY2hlbmtyZWlzemVudHJ1bS1sZWhuaW4tZm90b3MtbmFjaC1mZXJ0aWdzdGVsbHVuZy1ncmVnb3Itc2NobWlkdC0xMy02NDB4OTYwLmpwZyUyMDY0MHclMkMlMjBodHRwcyUzQSUyRiUyRmhvbHptYWdhemluLmNvbSUyRndwLWNvbnRlbnQlMkZ1cGxvYWRzJTJGMjAyNiUyRjAxJTJGa2lyY2hlbmtyZWlzemVudHJ1bS1sZWhuaW4tZm90b3MtbmFjaC1mZXJ0aWdzdGVsbHVuZy1ncmVnb3Itc2NobWlkdC0xMy0zMjB4NDgwLmpwZyUyMDMyMHclMjIlMjBkYXRhLXNpemVzJTNEJTIyMTAwdnclMjIlMjB3aWR0aCUzRCUyMjE0MDAlMjIlMjBoZWlnaHQlM0QlMjIyMTAwJTIyJTIwdGl0bGUlM0QlMjJLaXJjaGVua3JlaXN6ZW50cnVtJTIwTGVobmluX0ZvdG9zJTIwbmFjaCUyMEZlcnRpZ3N0ZWxsdW5nX0dyZWdvciUyMFNjaG1pZHQlMjAlMjgxMyUyOSUyMiUyMGFsdCUzRCUyMiUyMiUyMGRhdGEtY2FwdGlvbiUzRCUyMkZvdG8lM0ElMjBHcmVnb3IlMjBTY2htaWR0JTIyJTJGJTNFJTA5JTNDJTJGZGl2JTNF
Die L-förmige Anordnung der Baukörper schafft einen gefassten Vorplatz, der als Treffpunkt dient und den Gedanken eines „Hauses für alle“ unterstützt. Die barrierefreie Erschließung und die Gestaltung der Außenanlagen – mit einer Holzterrasse und historischen Ziegelpflasterflächen – setzen den Dialog zwischen Alt und Neu fort. Bemerkenswert ist die konsequente Einbindung regionaler Unternehmen: Alle planenden und ausführenden Firmen stammen aus Berlin-Brandenburg.

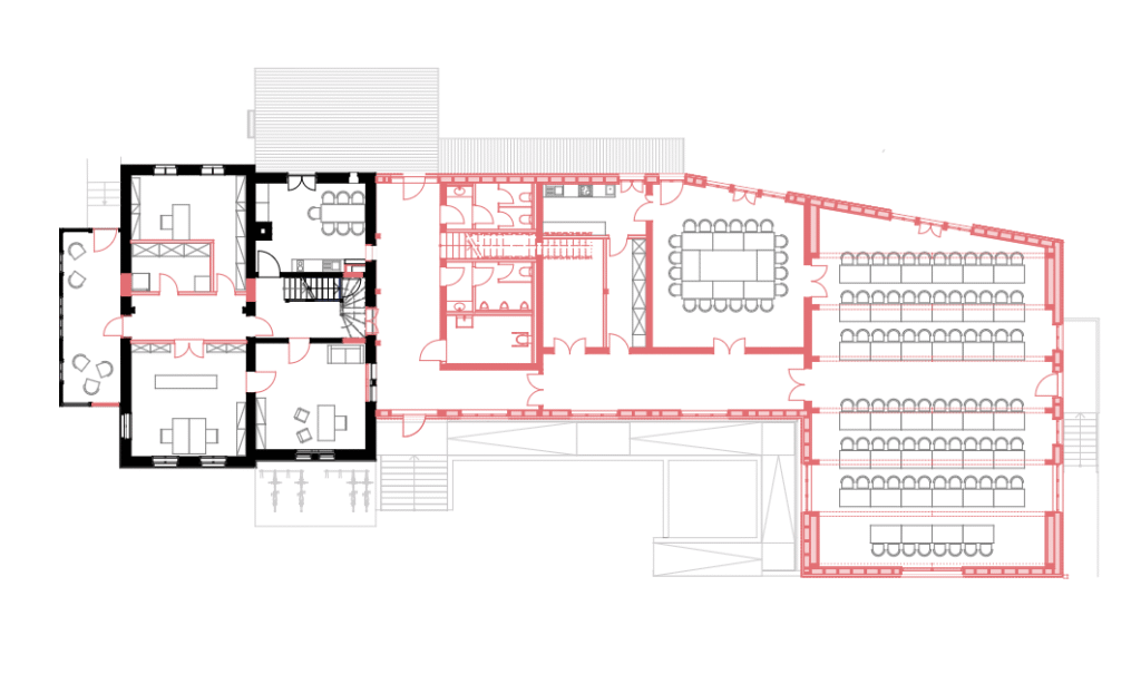
Grundriss: Erdgeschoss. Zeichnung: Krekeler Architekten
JTNDZGl2JTIwY2xhc3MlM0QlMjJpbWFnZS13cmFwcGVyJTIwbGFuZHNjYXBlJTIwem9vbS1tb2JpbGUlMjIlM0UlM0NpbWclMjBsb2FkaW5nJTNEJTIybGF6eSUyMiUyMHNyY3NldCUzRCUyMmh0dHBzJTNBJTJGJTJGaG9sem1hZ2F6aW4uY29tJTJGd3AtY29udGVudCUyRnVwbG9hZHMlMkYyMDI2JTJGMDElMkZiaWxkc2NoaXJtZm90by0yMDI2LTAxLTA4LXVtLTEwMjUxMC5wbmclMjAyeCUyQyUyMGh0dHBzJTNBJTJGJTJGaG9sem1hZ2F6aW4uY29tJTJGd3AtY29udGVudCUyRnVwbG9hZHMlMkYyMDI2JTJGMDElMkZiaWxkc2NoaXJtZm90by0yMDI2LTAxLTA4LXVtLTEwMjUxMC5wbmclMjAxOTIwdyUyQyUyMGh0dHBzJTNBJTJGJTJGaG9sem1hZ2F6aW4uY29tJTJGd3AtY29udGVudCUyRnVwbG9hZHMlMkYyMDI2JTJGMDElMkZiaWxkc2NoaXJtZm90by0yMDI2LTAxLTA4LXVtLTEwMjUxMC05NjB4NTg0LnBuZyUyMDk2MHclMkMlMjBodHRwcyUzQSUyRiUyRmhvbHptYWdhemluLmNvbSUyRndwLWNvbnRlbnQlMkZ1cGxvYWRzJTJGMjAyNiUyRjAxJTJGYmlsZHNjaGlybWZvdG8tMjAyNi0wMS0wOC11bS0xMDI1MTAtNjQweDM4OS5wbmclMjA2NDB3JTJDJTIwaHR0cHMlM0ElMkYlMkZob2x6bWFnYXppbi5jb20lMkZ3cC1jb250ZW50JTJGdXBsb2FkcyUyRjIwMjYlMkYwMSUyRmJpbGRzY2hpcm1mb3RvLTIwMjYtMDEtMDgtdW0tMTAyNTEwLTMyMHgxOTUucG5nJTIwMzIwdyUyMiUyMGRhdGEtc2l6ZXMlM0QlMjIxMDB2dyUyMiUyMHdpZHRoJTNEJTIyMTA2MiUyMiUyMGhlaWdodCUzRCUyMjY0NiUyMiUyMHRpdGxlJTNEJTIyQmlsZHNjaGlybWZvdG8lMjAyMDI2LTAxLTA4JTIwdW0lMjAxMC4yNS4xMCUyMiUyMGFsdCUzRCUyMiUyMiUyMGRhdGEtY2FwdGlvbiUzRCUyMkdydW5kcmlzcyUzQSUyMEVyZGdlc2Nob3NzLiUyMFplaWNobnVuZyUzQSUyMEtyZWtlbGVyJTIwQXJjaGl0ZWt0ZW4lMjIlMkYlM0UlMDklM0MlMkZkaXYlM0U=

Foto: Gregor Schmidt
JTNDZGl2JTIwY2xhc3MlM0QlMjJpbWFnZS13cmFwcGVyJTIwbGFuZHNjYXBlJTIwem9vbS1tb2JpbGUlMjIlM0UlM0NpbWclMjBsb2FkaW5nJTNEJTIybGF6eSUyMiUyMHNyY3NldCUzRCUyMmh0dHBzJTNBJTJGJTJGaG9sem1hZ2F6aW4uY29tJTJGd3AtY29udGVudCUyRnVwbG9hZHMlMkYyMDI2JTJGMDElMkZraXJjaGVua3JlaXN6ZW50cnVtLWxlaG5pbi1mb3Rvcy1uYWNoLWZlcnRpZ3N0ZWxsdW5nLWdyZWdvci1zY2htaWR0LTExLmpwZyUyMDJ4JTJDJTIwaHR0cHMlM0ElMkYlMkZob2x6bWFnYXppbi5jb20lMkZ3cC1jb250ZW50JTJGdXBsb2FkcyUyRjIwMjYlMkYwMSUyRmtpcmNoZW5rcmVpc3plbnRydW0tbGVobmluLWZvdG9zLW5hY2gtZmVydGlnc3RlbGx1bmctZ3JlZ29yLXNjaG1pZHQtMTEtMTkyMHgxMjgwLmpwZyUyMDE5MjB3JTJDJTIwaHR0cHMlM0ElMkYlMkZob2x6bWFnYXppbi5jb20lMkZ3cC1jb250ZW50JTJGdXBsb2FkcyUyRjIwMjYlMkYwMSUyRmtpcmNoZW5rcmVpc3plbnRydW0tbGVobmluLWZvdG9zLW5hY2gtZmVydGlnc3RlbGx1bmctZ3JlZ29yLXNjaG1pZHQtMTEtOTYweDY0MC5qcGclMjA5NjB3JTJDJTIwaHR0cHMlM0ElMkYlMkZob2x6bWFnYXppbi5jb20lMkZ3cC1jb250ZW50JTJGdXBsb2FkcyUyRjIwMjYlMkYwMSUyRmtpcmNoZW5rcmVpc3plbnRydW0tbGVobmluLWZvdG9zLW5hY2gtZmVydGlnc3RlbGx1bmctZ3JlZ29yLXNjaG1pZHQtMTEtNjQweDQyNy5qcGclMjA2NDB3JTJDJTIwaHR0cHMlM0ElMkYlMkZob2x6bWFnYXppbi5jb20lMkZ3cC1jb250ZW50JTJGdXBsb2FkcyUyRjIwMjYlMkYwMSUyRmtpcmNoZW5rcmVpc3plbnRydW0tbGVobmluLWZvdG9zLW5hY2gtZmVydGlnc3RlbGx1bmctZ3JlZ29yLXNjaG1pZHQtMTEtMzIweDIxMy5qcGclMjAzMjB3JTIyJTIwZGF0YS1zaXplcyUzRCUyMjEwMHZ3JTIyJTIwd2lkdGglM0QlMjIxOTIwJTIyJTIwaGVpZ2h0JTNEJTIyMTI4MCUyMiUyMHRpdGxlJTNEJTIyS2lyY2hlbmtyZWlzemVudHJ1bSUyMExlaG5pbl9Gb3RvcyUyMG5hY2glMjBGZXJ0aWdzdGVsbHVuZ19HcmVnb3IlMjBTY2htaWR0JTIwJTI4MTElMjklMjIlMjBhbHQlM0QlMjIlMjIlMjBkYXRhLWNhcHRpb24lM0QlMjJGb3RvJTNBJTIwR3JlZ29yJTIwU2NobWlkdCUyMiUyRiUzRSUwOSUzQyUyRmRpdiUzRQ==
Daten und Fakten
- Bauherr: Evangelischer Kirchenkreis Mittelmark-Brandenburg
- Architekten: Krekeler Architekten
- Projektzeitraum: 01/2020 – 02/2025
- Konstruktion: Holzrahmenbau, Hybridbauweise, hinterlüftete Lärchenholzfassade
- Technik: Wärmepumpe mit Erdsonden, Photovoltaikanlage
Passende Beiträge