Architektur
Tischlerei Rüscher: Holzbau für Generationen

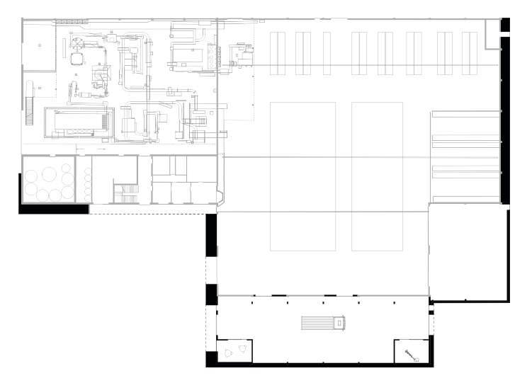
In Obertrum am See wird bereits seit 1601 Bier gebraut. Als Familienunternehmen wird die Brauerei seit 1775 geführt, als diese in den Privatbesitz überging. „Die Trumer Privatbrauerei steht für Werte wie Regionalität, Qualität und Authentizität. Das Arbeiten und Verarbeiten von natürlichen Rohstoffen aus der Region ist das tägliche Geschäft des seit acht Generationen familiengeführten Betriebes. Diese Wertehaltung soll nun auch in die Architektur der Brauerei transportiert und so auf räumlicher Ebene erlebbar gemacht werden“, erzählt das Architektenteam dunkelschwarz, das für die Umsetzung von den Bauherrn bewusst ausgewählt wurde. Die betrieblichen Vorgaben für die Erweiterungsbauten der Lagerhalle und Verladestraße waren von Seiten der Bauherrschaft bereits erarbeitet, auch der Wunsch nach dem regional verfügbaren, nachhaltigen Baustoff Holz stand fest.

» Die Zubauten nehmen die Strukturen der Bestandshalle auf und setzen die Grabendachtypologie logisch fort. Die Fortsetzung erfolgt jedoch im Kontrast zum Bestand nicht mehr in Stahlbetonfertigteilbauweise, sondern mit dem Baustoff Holz. « dunkelschwarz Architekten
___STEADY_PAYWALL___
Die Zubauten nehmen Dachform, Typologie und Bauhöhe des Bestands auf und fügen sich harmonisch in das Gesamtbild des Brauereigeländes ein. Der ursprüngliche Stahlbeton wird jedoch durch den Baustoff Holz ersetzt, der konstruktiv und sichtbar zum Einsatz kommt. Ein überhöhter Stahlbetonsockel bildet zwar den Anprallschutz für den LKW-Verkehr, darauf ruht der Holzbau, der mittels BSH-Trägern die Tragwerkachsen aufnimmt. Dazwischen spannt eine offene Sparrenlage aus Konstruktionsvollholz, ausgesteift durch Windrispen aus verzinktem Stahl.
„In der Fassadengestaltung findet sich das Material wieder und strukturiert mit unterschiedlich orientierten Holzlattungen die großvolumigen Baukörper.“ Die umlaufende Verglasung im Bereich der Giebelfassaden, ebenfalls ein weitergeführtes Element des Bestands, stellt die ausreichende Tageslichtzufuhr sicher und kreiert ein interessantes Spiel aus Licht und Schatten.
„Auch große Teile der Bestandshalle wurden gestalterisch überarbeitet und in das neue Erscheinungsbild integriert, sodass die bauliche Weiterentwicklung des Brauereigeländes schlüssig und ganzheitlich vollzogen wird“, erklären die Architekten. Die Bestandsfassaden wurden gestalterisch an die Zubauten angepasst und bilden ein einheitliches Ensemble.




Zusätzliche Flächen und eine Verladestraße erweitern die bestehende Lager- und Abfüllhalle. „Bisher wurde ein Teil der bestehenden Lagerhalle als Verladestraße genutzt, diese Doppelnutzung führte zu kreuzenden Verkehrswegen, erhöhtem Schmutzeintrag und Einschränkungen. Um den Betrieb zu optimieren und die Außenwirkung zur Ortsseite hin ansprechend zu gestalten, wurde die Verladestraße baulich eingefasst.“ Während im Inneren Produktion und Logistik das Brauereigelände prägen, stellt im Umland die heimische Pflanzenwahl und Biodiversität die Einbindung ins Landschaftsbild sicher. Ein Hopfenfeld zwischen Brauerei und Ortsstraße fungiert als Identitätsträger der Brauerei und wird einmal jährlich im Rahmen eines Ortsfestes mit den Einwohner:innen geerntet.
Besonders herausfordernd war die Vorgabe, den Brauereibetrieb während der Bauphase aufrecht zu erhalten. Dafür wurde die bauliche Umsetzung in zwei Etappen getrennt. Auch die Schnittstellen zum Bestand erforderten besonderes planerisches und technisches Augenmerk, was letztendlich zu einer einwandfreien Lösung führte.
Thermisch sind die Erweiterungsbauten sehr einfach ausgeführt, da sie unbeheizt sind. Für die eigene Energieversorgung wurde die bestehende PV-Anlage auf den Dächern der Erweiterungsbauten ergänzt.
Durch den sensiblen Umgang der Architekt:innen mit dem Bestand und der Philosophie der Brauerei ist es gelungen diese neu aufzunehmen und räumlich erlebbar zu machen. Die vorgesetzte Hozfassade lässt Bestand und Erweiterung zu einem homogenen Gesamtbild verschmelzen.


